Portique électrique Crane Ship Deck Equipment de salle des machines
Description :
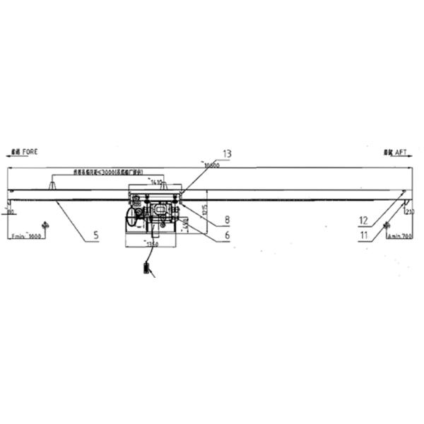
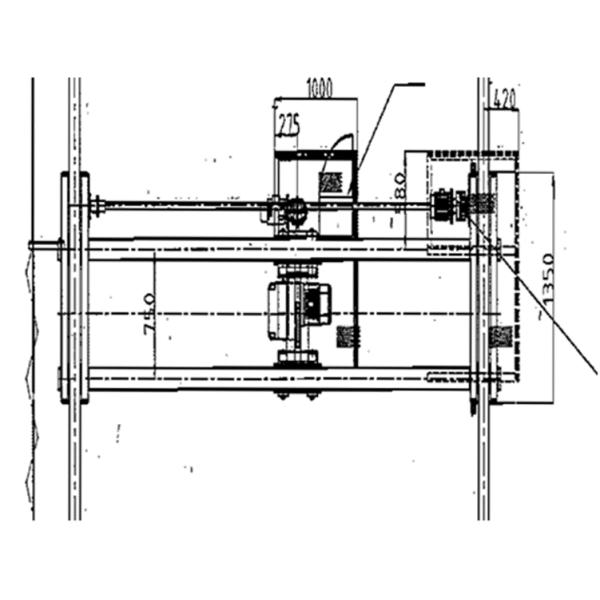
La grue de salle des machines est grue à télécommande électrique. Elle est pour les pièces de rechange de salle des machines et le but de levage de moteur d'entretien. Elle est au-dessus de moteur principal. Elle peut également être employée pour soulever l'autre équipement de salle des machines pour se déplacer dedans et sortir. Elle aide l'équipage de bateau à réduire leur charge de travail et à faciliter leur vie. Notre grue de salle des machines est facile pour l'entretien et à faible bruit.
Spécifications techniques principales :
Paramètres techniques principaux :
| SWL (Tonne) |
Horizontal Déplacement Vitesse (m/min) |
Levage Vitesse |
Puissance Approvisionnement |
Levage Taille (m) |
Moteur de déplacement Levage des paramètres de moteur |
| 0,5 | 6 | 8 |
AC380V, 50HZ 3PH
AC415V 50HZ 3PH
AC440 60HZ 3PH |
5-12 | 0.2/0.8 |
| 1 | 6 | 8 | 5-12 | 0.4/1.5 | |
| 2 | 6 | 8 | 5-40 | 0.4/3 | |
| 3 | 6 | 8 | 5-40 | 0.8/4.5 | |
| 5 | 6 | 8 | 5-40 | 0.8/7.5 |


Dessin de portique électrique Crane Ship Deck Equipment de salle des machines
