Les rails légers de 18 kg pour l'exploitation minière sont particulièrement adaptés aux systèmes de transport ferroviaire dans certaines petites mines et sous-marines.Ces systèmes sont généralement légèrement chargés et adaptés au transport à basse vitesse et à faible charge.Par exemple, les lignes de transport de voitures de mine légères dans les mines de charbon, les mines de sable et de gravier et d'autres zones minières.
Dans certaines mines ou chemins de fer miniers avec de petites charges, les rails de 18 kg offrent une option légère et économique.
Pour certains systèmes de transport minier à court terme ou des lignes ferroviaires temporaires, les rails légers de 18 kg pour l'exploitation minière sont également très appropriés.Les rails de 18 kg peuvent jouer un rôle plus important dans les projets temporairesLes rails de 18 kg peuvent également être utilisés dans les systèmes de transport auxiliaires des mines, tels que les voies de transport du personnel, le transport des chariots d'équipement, etc.Ces lignes sont généralement légèrement chargées et voyagent lentement., et les rails de 18 kg peuvent répondre pleinement aux besoins.
Rails en acier léger de 18 kg
| Paramètres | |||
| type | Poids (kg/m) | le matériel | longueur (m) |
| 18 kg | 18.06 | Le montant de l'aide est calculé en fonction de la situation actuelle. | 6 à 8 m |
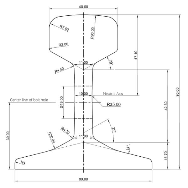
| hauteur du rail (mm) | largeur du fond (mm) | largeur de la tête (mm) | épaisseur de la toile (mm) |
| 90 | 80 | 40 | 10 |




GNEE (Tianjin) Multinational Trade Co., Ltd. a été créée par la Chine.
Depuis sa création en 2008, nous sommes une entreprise professionnelle engagée dans le domaine du commerce extérieur ferroviaire, fournissant des produits ferroviaires de haute qualité aux clients du monde entier.Après plus de dix ans de développement régulier, nous avons établi des relations de coopération à long terme et stables avec plus de 8 000 clients, avec des affaires dans plus de 160 pays.Nous écrivons ensemble un chapitre glorieux dans le commerce extérieur ferroviaire..

1.Q: Quels types de rails fournissez-vous?
R: Nous fournissons une variété de rails, y compris les normes chinoises (telles que GB/T 2585), les normes internationales (telles que UIC 860, AREMA 115), les normes européennes (EN 13674), etc., couvrant les rails légers,rails lourds, rails de grue, etc.
2Q: Quels sont les matériaux et les qualités de résistance des rails?
R: Les matériaux courants sont les U71Mn, U75V, 55Q, etc., dont la résistance varie de 700MPa à 1100MPa, selon les besoins du client (tels que la résistance à l'usure, la résistance aux chocs).
3Q: Les spécifications (longueur, dimensions de la section transversale) des rails peuvent-elles être personnalisées?
R: Oui, nous fournissons des longueurs standard (12,5 m/25 m) ou des longueurs personnalisées, et des dimensions de section transversale (telles que 50 kg/m, 60 kg/m) peuvent également être produites sur demande.
4Q: Quelles sont les technologies de traitement de surface et d'anticorrosion des rails?
R: La peinture, la galvanisation ou la pulvérisation d'un revêtement anticorrosion sont facultatives. Des rails résistants aux intempéries peuvent être fournis pour des environnements spéciaux (tels que les zones côtières).
