Offre spéciale pour le refroidissement par eau par évaporation des appareils de refroidissement par air conditionné à l' intérieur par jet avec plastique à l' extérieur
Gamme complète de produits
Répondre aux besoins divers des clients avec une grande variété d'options

Tous les composants clés proviennent de grandes marques mondiales
Composants de base, y compris les compresseurs, les soupapes de dilatation électroniques, les échangeurs de chaleur, les moteurs, les ventilateurs, les cartes de commande, les tuyaux en cuivre, les matériaux en cuivre,Nous avons sélectionné avec soin des fournisseurs de renommée internationale avec lesquels nous entretenons des partenariats à long terme.
Ce sourcing professionnel garantit que chaque composant des systèmes de refroidissement air-eau de Wotech fonctionne à un rendement maximal, libérant pleinement le potentiel de haute efficacité de l'unité.
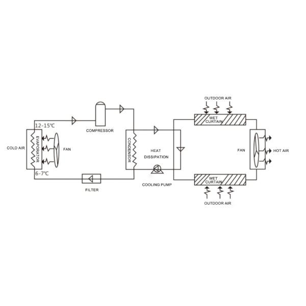
Principe de fonctionnement du système
Ce système combine le refroidissement à l'eau, le refroidissement à l'air, le refroidissement par évaporation et la technologie du compresseur pour obtenir une efficacité thermique optimale.
L'unité extérieure utilise d'abord un refroidissement par évaporation via un rideau humide (mousse) pour réduire la température de l'eau en circulation.est refroidi à température ambiante par ce procédé.
L'eau refroidie passe ensuite par l'échangeur de chaleur à l'intérieur de l'unité intérieure.gaz à haute pressionLorsque ce gaz circule à travers l'échangeur de chaleur intérieur, il libère de la chaleur dans l'eau, se transformant en réfrigérant liquide à température moyenne.
Ce réfrigérant liquide est ensuite soumis à un étouffement par une vanne de dilatation, devenant un liquide à basse température et basse pression avant d'entrer dans l'évaporateur intérieur.Il échange pleinement la chaleur avec l'air chaud intérieur, délivrant de l'air frais dans l'espace.
Parallèlement, l'échangeur de chaleur produit de l'eau chaude, qui est ensuite pompée vers le distributeur d'eau de l'unité extérieure et dirigée vers le rideau humide.Par une combinaison de refroidissement par air et de refroidissement par évaporation, la chaleur est effectivement évacuée, transformant l'eau à haute température en eau ambiante.
Ce cycle se répète en continu, ce qui maximise l'efficacité énergétique et réduit considérablement la consommation d'énergie.
Diagramme du système
Le refroidissement par eau par évaporation AC est composé d'un compresseur, d'un condenseur, d'une vanne de dilatation, d'un évaporateur et d'un rideau humide.

| Modèle | Les résultats de l'analyse sont publiés dans le Bulletin de l'OMS. Unité intérieure ((Type de débit de jet monté au sol) |
Les résultats de l'analyse sont publiés dans le Bulletin de l'OMS. Unité d'intérieur (type de conduit monté au sol) |
Les résultats de l'analyse sont publiés dans le Bulletin de l'OMS. Unité intérieure ((type de conduit monté au plafond) |
Les résultats de l'analyse sont publiés dans le Bulletin de l'OMS. Unité intérieure ((Type de débit de jet monté au plafond) |
WBC-19.8C-A/P-S(SW) Unité extérieure ((Tour de refroidissement) | |
| Condition de refroidissement: air 24/17°C, eau 30/35°C | ||||||
| Max.Capacité de refroidissement (KW) | 18.5 | 18.1 | 18.5 | |||
| Puissance d'entrée (KW) | 5.5 | 5.5 | 5.5 | |||
| RSE | 3.4 | 3.3 | 3.4 | |||
| Température de fonctionnement de l'air °C | 10 à 45 | |||||
| Énergie électrique (V/Hz) | 380V 3N à 50Hz | |||||
| Puissance d'entrée nominale ((KW) | 5.50 | 5.5 | 0.8 | |||
| Courant d'entrée nominal (A) | 11.2 | 12.5 | 1.38 | |||
| Courant de refroidissement maximal (A) | 14.7 | 14.8 | 1.79 | |||
| Quantité de ventilateur | 1 | 1 | 1 | |||
| Type de compresseur | Faites défiler | Faites défiler | - | |||
| Numéro du compresseur | 1 | 1 | - | |||
| Marque du compresseur | Invotech | Invotech | - | |||
| Le réfrigérant chargé | R410A | R410A | - | |||
| Connexion à l'eau (pouces) | 1.5 | 1.5 | 1.5 | |||
| Niveau sonore à 1 m (dB ((A)) | ≤ 63 | ≤ 63 | - | |||
| Poids net / poids brut (kg) | 245/260 | 175/190 | 118/128 Les produits de base | |||
| Dimension nette L*W*H(mm) | 1000*650*2120 | 1300*830*680 | 860*860*1340 | |||
| Dimension de l'emballage L*W*H(mm) | 1060*745*2240 | 1380*950*820 | 940*940*1500 | |||
Applications recommandées